

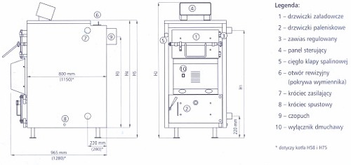
Kocioł opalany drewnem Holzgaz 2000. Do opracowania kotła zmusiły nas stystematycznie drożejące paliwa: gaz ziemny i olej opałowy. Kotły opalane drewnem są szeroko rozpowszechnione w całej zachodniej Europie, w szczególności w Niemczech, Austrii, Szwajcarii, i Włoszech. Znajdują się one w ofercie największych europejskich producentów kotłów. Działanie kotła polega na dwustopniowym spalaniu drewna: etap pierwszy zgazowanie drewna w komorze żarzenia, etap drugi spalanie przechodzących przez dyszę gazów. Wysoka jakość spalania, czystość spalin i duża sprawność kotłów na zgazowane drewno upoważnia je do zaliczenia w grono urządzeń ekologicznych. W warunkach polskich, gdzie dysponujemy szczególnie tanim surowcem, ogrzewanie drewnem jest 4 razy tańsze od ogrzewania gazowego lub olejowego. Tym co szczególnie odróżnia kocioł na drewno od kotła węglowego jest praktycznie zupełne spalanie popiół usuwa się raz na dwa tygodnie bez przerywania pracy kotła. Ładowanie kotła odbywa się raz lub dwa razy dziennie, w zależności od aktualnego zapotrzebowania na ciepło. Koncepcja kotła Holzgaz oparta jest na znajomości podobnych rozwiązań producentów Niemieckich. Kocioł występuje w dwóch wersjach automatyki: automatyka uproszczona tj. regulacja temperatury kotła, zabezpieczenie przed zagotowaniem wody w kotle, ochrona przed kondensacją spalin lub automatyka pogodowa: sterowanie obwodami grzewczymi na podstawie temperatury zewnętrznej.
Przedstawiamy Państwu gazowy, żeliwny kocioł centralnego olewania typ DomGaz przeznaczony do ogrzewania budynków mieszkalnych, budynków użytkowych i wytwarzania ciepłej wody. Kocioł wyposażony jest w niskoemisyjny palnik gazowy, zintegrowaną automatykę gazową firmy SlT lub Honeywell, elektroniczy panel sterujący, obsługujący układ centralnego ogrzewania (CO) i przygotowania ciepłej wody. Wymiennik ciepła w kotle wykonany jest z wysokogatunkowego żeliwa GG20 o wysokiej odporności na korozję. Jest to żeliwo stosowane przez przodujących producentów europejskich. typoszereg kotłów KGZ obejmuje kotły o mocach 16, 24, 32, 42, 50 i 58kW. Jako szczególną zaleta należy wymienić możliwość współpracy kotła z zasobnikiem ciepłej wody. Współpraca polega na takim sterowaniu pompami i zaworami mieszającymi aby maksymalnie szybko i ekonomicznie nagrzewać wodę sanitarną. Wyposażenie kotła w automatykę pogodową pozwala na obsługiwanie dowolnie skomplikowanych układów grzewczych (mieszacze, układy wielokrotne, ogrzewanie podłogowe). Na uwagę zasługują oferowane (przez firmę wysokiej jakości wymienniki ciepłej wody wzorowane na rozwiązaniach producentów zachodnioeuropejskich i wykonane w oparciu o najlepsze materiały (wysokogatunkowa emalia i anoda ochronna).